Kamin Atlantic 601
Tootja: LacunzaKirjeldus
ATLANTIC 601 on kaasaegne puuküttega teraskamin, mis toimib tõhusa soojusallikana ja tänu minimalistlikule disainile sobib tänapäevase kodu sisustusse.
Kamin vastab ECODESIGNi standardi nõuetele. See on kõrge efektiivsuse, madala heitgaasi ja ohutu põlemisprotsessi tagatis. Kamina põlemiskamber on valmistatud vermikullidist, mis tõstab koldes temperatuuri. See tagab tõhusama ja puhtama põlemise.
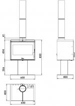
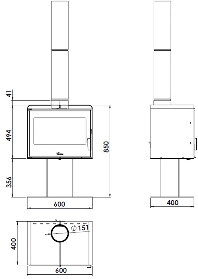
KAMINA MÕÕDUD
Kõrgus: 850 mmLaius: 600 mmSügavus: 400 mmKAMINA TEHNILISED ANDMED
Nominaalne soojusvõimsus: 12 kWKasutegur: 85 %Väljuvate suitsugaaside temperatuur: 252 ℃Halupuude pikkus: 30-40 cmSuitsutoru ühenduse diameeter: 150 mmKaal: 90 kg







