Moodul kamin BOX VASAK ardesia nero

Kirjeldus

Kas soovite oma kodu interjööri kiiresti muuta, et saada originaalne ja omanäoline karakter? Kas olete mõelnud kamina peale, kuid teil pole selle viimistlemiseks inspiratsiooni?

Meil on teile valmis lahendus! FLOKI BOX on kombinatsioon küljele avaneva uksega kaasaegsest ja ökoloogilisest FLOKI südamikust ja kvartspaagutatud paneelidega terasraamil põhinevast moodulkorpusest. Korpuse minimalism sulandub ideaalselt iga interjööriga. Tervikuna on see ideaalne vastus sisekujunduse praegustele suundumustele. Ideaalsed proportsioonid ja minimalism koos tule kahesuunalise nägemisega loovad sooja ja hubase atmosfääri.

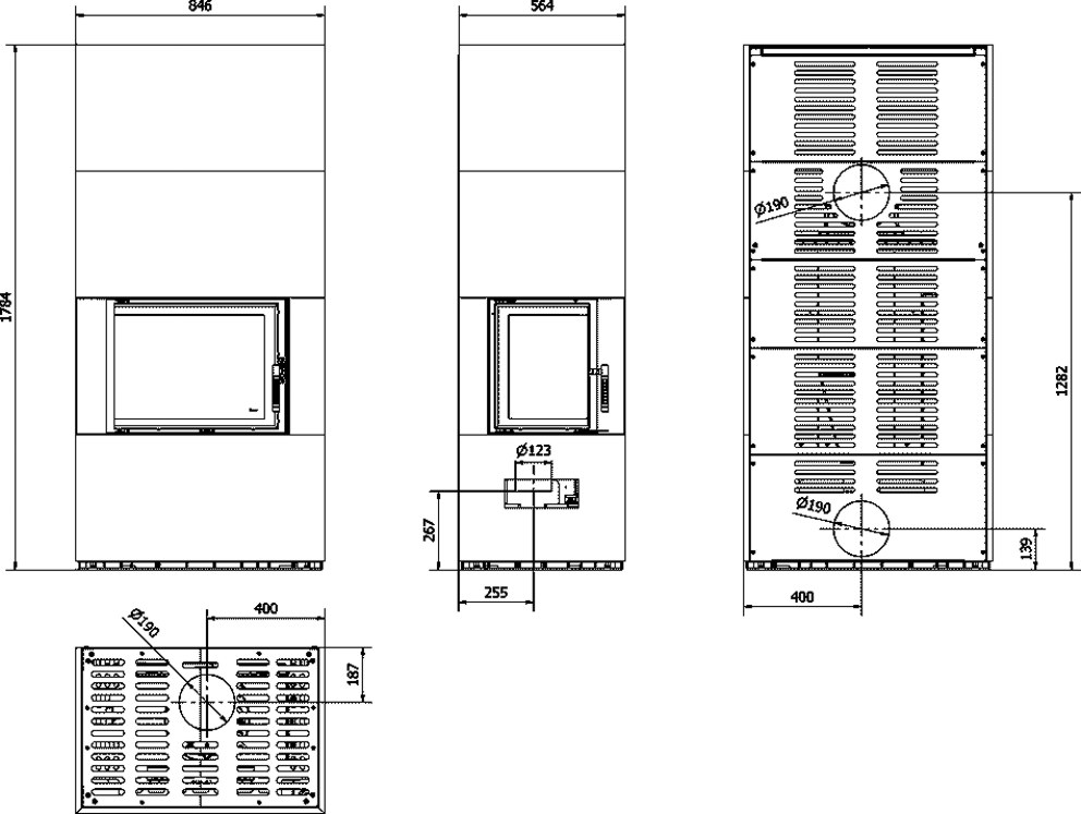
KAMINA MÕÕDUD
Kõrgus: 1784 mm
Laius: 846 mm
Sügavus: 566 mm

KAMINA TEHNILISED ANDMED
Soojusvõimsuse vahemik: 3,5 - 11 kW
Nominaalne soojusvõimsus: 8 kW
Kasutegur: 79,7 %
Väljuvate suitsugaaside temperatuur: 270 ℃
Halupuude max. pikkus: 40 cm
Suitsutoru ühenduse diameeter: 160 mm
Kaal: 278 kg