Kamin THOR
Kirjeldus
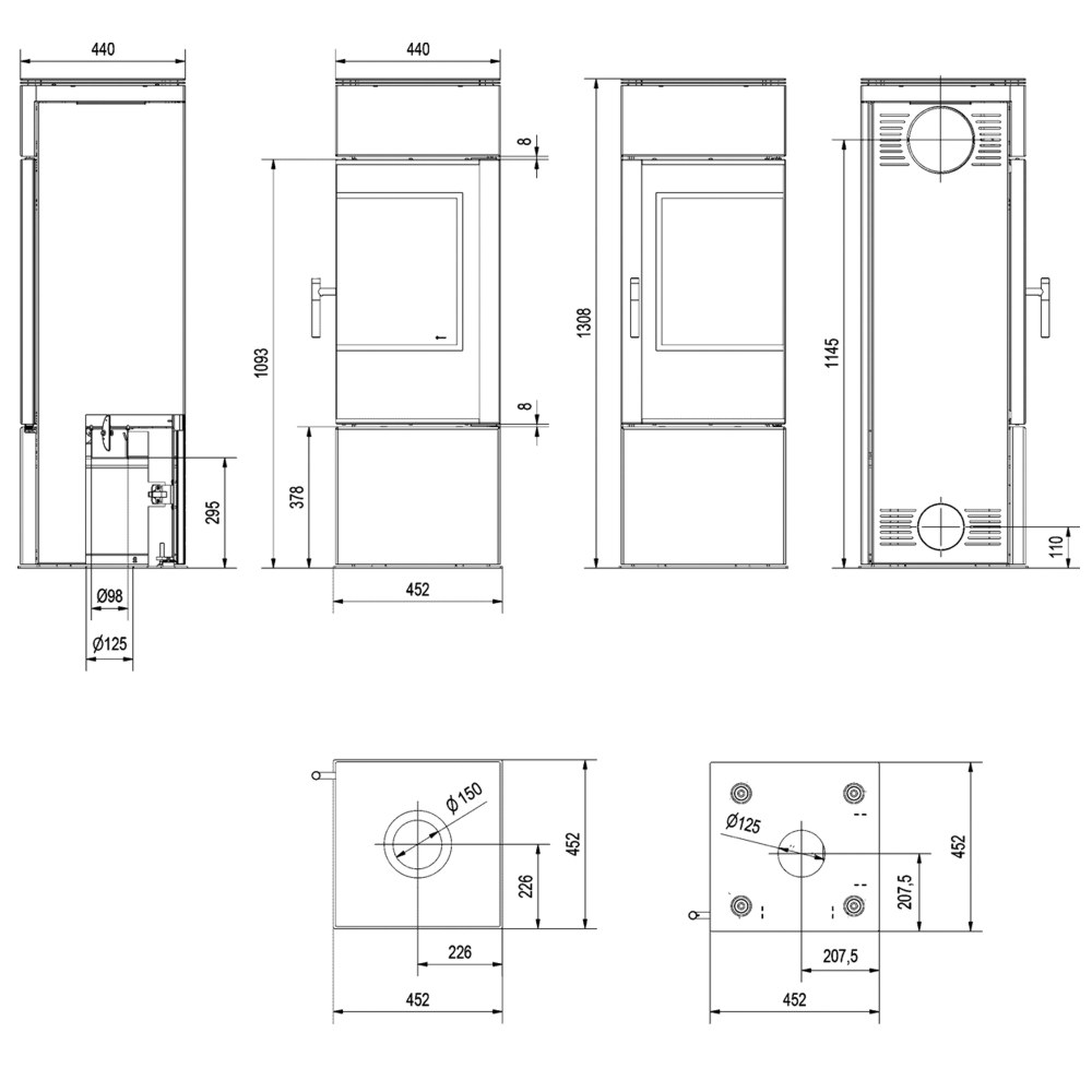
Terasest puuküttega kamin, millel on nurgaklaasiga uks. Kolle on vooderdatud tulekindla soojust salvestava materjaliga ACCUMOTE.
Kamin on varustatud reguleeritavate jalgadega, mis võimaldab toote lihtsat loodimist. Kamina põlemisõhu saab soovi korral võtta väliskeskkonnast.
- Liitmiku diameeter (mm) : Ø150
- Võimsuse vahemik: 5,5 - 10 kW
- Nominaalne võimsus : 8 kW
- Väljuvate suitsugaaside temperatuur: 276 oC
- Kasutegur : 83 %
- CO rate : 0.1 %
- Kaal : 160 Kg









