Pliit LIS 5T
Tootja: LacunzaKirjeldus
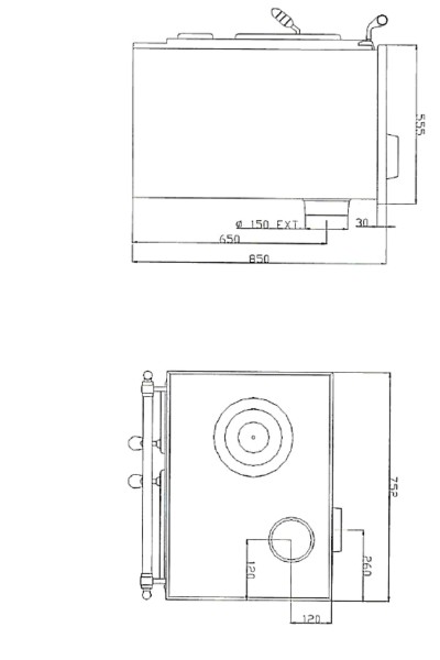
Traditsiooniline malmist puupliit LIS 5T. Pliiti on võimalik tellida klassikalise malmist pliidiplaadiga või lisa keraamilise plaadiga.
- Liitmiku diameeter (mm) : Ø150
- Nominaalne võimsus : 9 kW
- Väljuvate suitsugaaside temperatuur: 240 oC
- Kasutegur : 77 %
- CO rate : 0.29 %
- Kaal : 184 Kg






