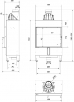
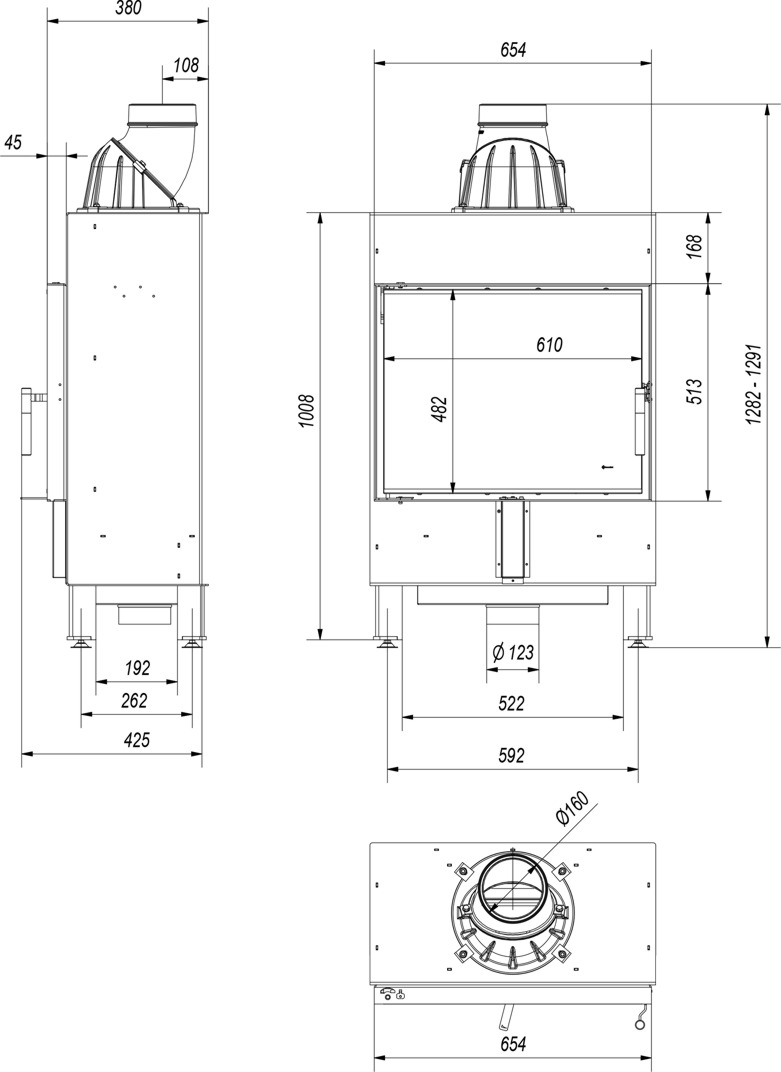
Kaminasüdamik LUCY12 SLIM PRO
Kirjeldus
Terasest südamik sirge küljele avaneva klaasuksega. Südamik on väiksema sügavusega, mis võimaldab kamina ehitada maksimaalselt väikese sügavusega. Kolle on vooderdatud tulekindla soojust salvestava materjaliga TERMOTEC.
Südamik on varustatud reguleeritavate jalgadega, mis võimaldab toote lihtsat loodimist. Kaminasüdamik on varustatud välisõhuga ühendamise liitmikuga.
- Liitmiku diameeter (mm) : Ø160
- Võimsuse vahemik: 3-10 kW
- Nominaalne võimsus : 8 kW
- Väljuvate suitsugaaside temperatuur: 180 oC
- Kasutegur : 83 %
- CO rate : 0.09 %
- Kaal : 155 Kg






