Kaminasüdamik LUCY12/BS PRO
Kirjeldus
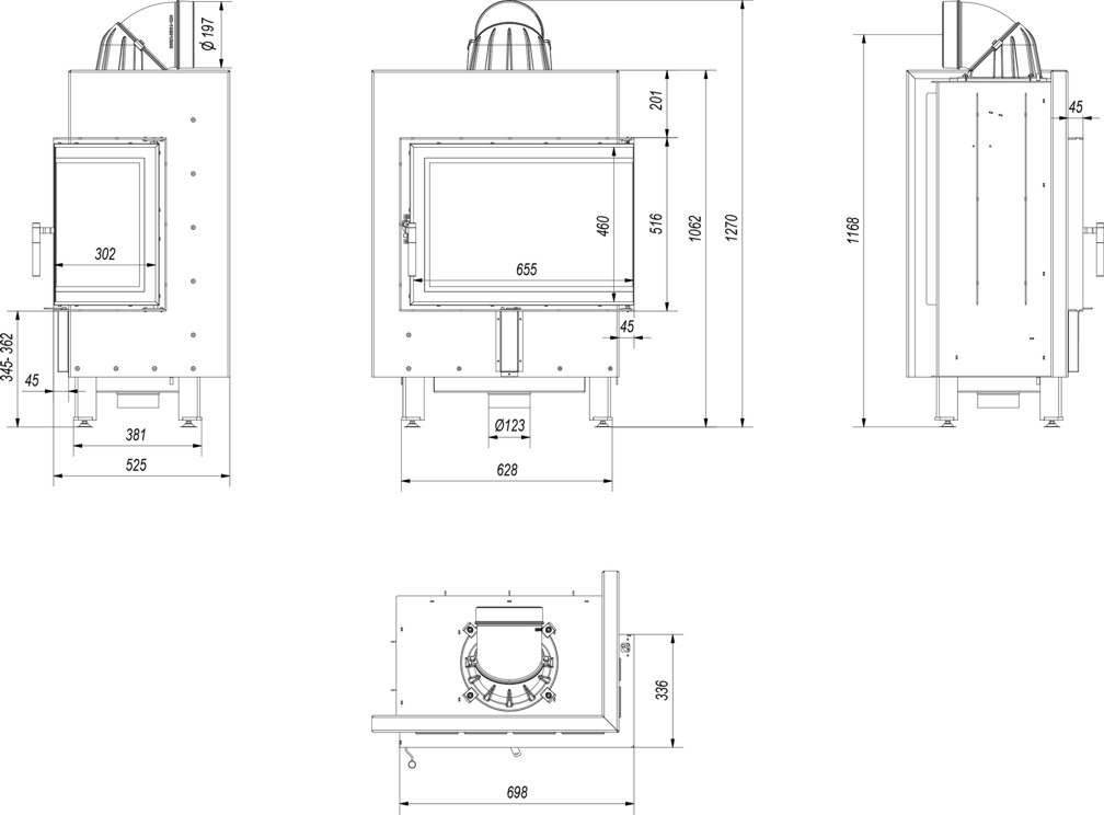
Terasest küljeklaasiga südamik on küljele avaneva klaasuksega. Kolle on vooderdatud tulekindla soojust salvestava materjaliga THERMOTEC.
Südamik on varustatud reguleeritavate jalgadega, mis võimaldab toote lihtsat loodimist. Kaminasüdamik on varustatud välisõhuga ühendamise liitmikuga.
- Liitmiku diameeter (mm) : Ø200
- Võimsuse vahemik: 5-15 kW
- Nominaalne võimsus : 12 kW
- Väljuvate suitsugaaside temperatuur: 270 oC
- Kasutegur : 80 %
- CO rate : 0.1 %
- Kaal : 194 Kg











