Lucy 16 veesärgiga
Tootja: KratkiKirjeldus
Sobilik kaminasüda kõigile, kes soovivad maksimaalselt ära kasutada kogu kamina soojust. Kaasaegsed lahendused annavad energiasäästu ning teevad seadme kasutamise ja hoolduse lihtsaks. Kolle on vooderdatud tulekindla soojust salvestava materjaliga TERMOTEC, mis tagab tõhusa põlemisprotsessi ja hoiab kolde pikemalt sooja.Südamik on varustatud reguleeritavate jalgadega, mis võimaldab toote lihtsat loodimist. Kaminasüdamik on varustatud välisõhuga ühendamise liitmikuga.
|
Materjalid Teras: struktuurMalm: KolderestVärvitud teras: ukse raamThermotec: kolle |
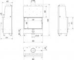
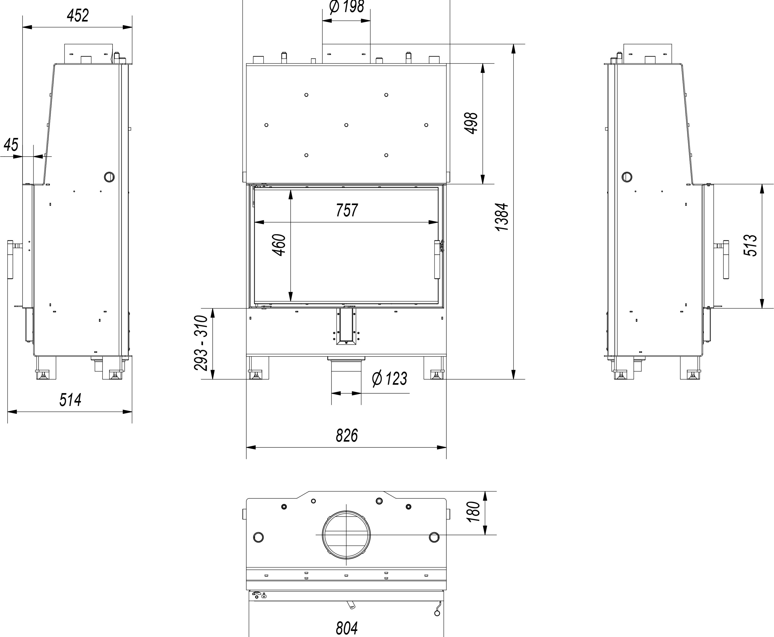
Tehnilised andmed Kütus - halupuitNominaalne võimsus - 16,0kWVõimsuse vahemik - 7,0 - 19,0kW Keskmine võimsus veele - 10,0kW Kasutegur - 84%Vee maht - 39LSuitsugaaside temperatuur - 200°CMõõdud L/K/S - 856/1384/407mmKaal - 257kg |







