Gaasikamina südamik LEO 200 küljeklaasiga
Kirjeldus
Horisontaalse kujuga gaasil töötav küljeklaasiga kaminasüdamik. Kaminasüdamikku saab kas parempoolse või vasakpoolse küljeklaasiga.
Suletud kaminasüdamik tarnitakse koos komplekti dekoratiivsete kividega, mis kaunistavad kamina kollet. Kamina juhtimine toimub komplekti kuuluva kaugjuhtimispuldiga.
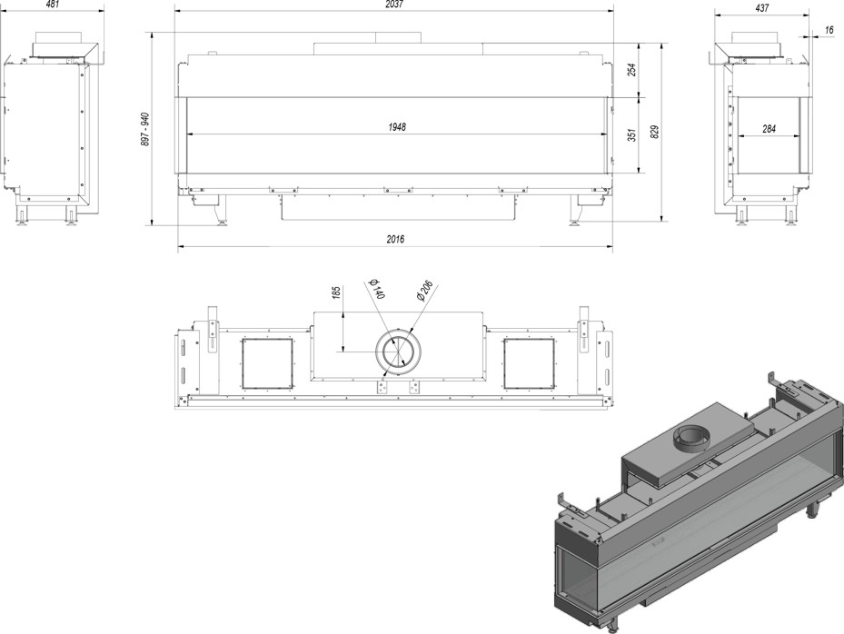
- Liitmiku diameeter (mm)sisse/välja : Ø206/140
- Üldised mõõdud LxSxK (mm) : 2016 x 481 x 903
- Klaasi mõõdud LxK (mm) : 1948 x 351
- Võimsuse vahemik (kW) : 8,5 - 17,0
- Kaal : 239 Kg








