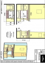
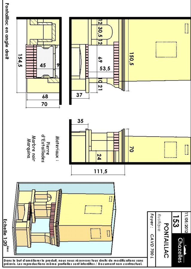
Kamin Pontaillac
Tootja: ChazellesKirjeldus
Maalähedase välimusega kamin sirgele seinale. Detaild valmistatud kivist Mauzens, dekoratiivtellisest.Komplekti kuulub kivist karniis. Võimalik versioon nurka paigaldamiseks.
Koldena kasutatud südamikku Chazelles CAVG 701 L.
Üldised mõõdud: 1680 x 700 x 1120 mm
Kiviosa kaal(net): 768 kg
Tellimisaeg ca. 6 nädalat
Võimalikud pinnaviimistluse materjalid












