Kamin Brillac
Tootja: ChazellesKirjeldus
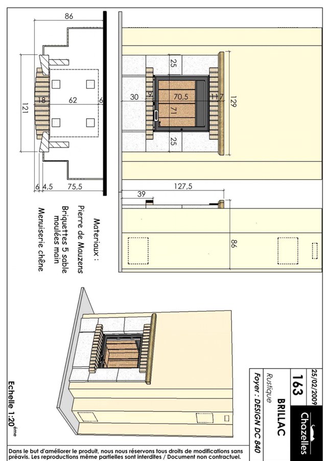
Maalähedase välimusega süvistatav kamin nii sirgele seinale, kui nurka. Detaild valmistatud kivist Mauzens, dekoratiivtellisest.Koldena kasutatud malmist südamikku Chazelles DC 840. Kaminast võimalik ka avatud koldega versioon.
Üldised mõõdud: 1290 x 140 x 1280 mm
Kiviosa kaal(net): 410 kg
Tellimisaeg ca. 6 nädalat
Võimalikud pinnaviimistluse materjalid














