Kamin Ascain
Tootja: ChazellesKirjeldus
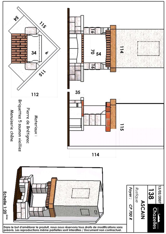
Maalähedase välimusega nurgakamin. Detaild valmistatud kivist Mauzens, dekoratiivtellisest. Komplekti kuulub tammest puitkarniis.Koldena kasutatud malmist südamikku Chazelles CP 703 L. Kaminast võimalik ka avatud koldega versioon. Üldised mõõdud: 1150x1150 nurgast x 1140 mm
Kiviosa kaal(net): 567 kg
Tellimisaeg ca. 6 nädalat
Võimalikud pinnaviimistluse materjalid













